
Bạn đang sở hữu một lô đất diện tích 5×15 và bạn có ý định xây nhà trong tương lai gần nhưng lại chưa biết phối cảnh kiến trúc sao cho độc đáo? Trong bài viết này, Mogi sẽ chia sẻ các bản vẽ thiết kế mẫu nhà phố 2 tầng 5×15 được ưa chuộng nhất hiện nay. Hãy tham khảo để có thể lựa chọn được những ý tưởng thiết kế nhà độc đáo và bắt mắt cho ngôi nhà mơ ước nhé.
Bản vẽ autocad là gì?
Autocad là một phần mềm soạn thảo dùng để vẽ, tạo bảng vẽ kỹ thuật thông qua biểu diễn các vector 2D hoặc bề mặt 3D.
Autocad được ra mắt cuối năm 1982 bởi tập đoàn Autodesk. Nó thường được dùng trong các lĩnh vực công nghiệp, xây dựng, kiến trúc. Ứng dụng Autocad thường được dùng để tạo ra tác phẩm thiết kế, quy trình gia công sản phẩm, mẫu vẽ mô phỏng vật thể dựa trên các đồ họa máy tính.

Dân kiến trúc chắc chắn cực quen thuộc với Autocad vì cần phải tiếp xúc với phần mềm mỗi ngày để vẽ các bản dự án công trình xây dựng hay tòa nhà, được trình bày dưới dạng 2D/ 3D. Các tính năng trong Autocad cũng cho phép kiến trúc sư biết số liệu cụ thể về khối lượng của các vật liệu sử dụng.
Trông nội dung bài viết này, Mogi sẽ giới thiệu đến bạn đọc các bản vẽ cad nhà 2 tầng 5×15 full.
Các bản vẽ thiết kế mẫu nhà phố 2 tầng 5×15
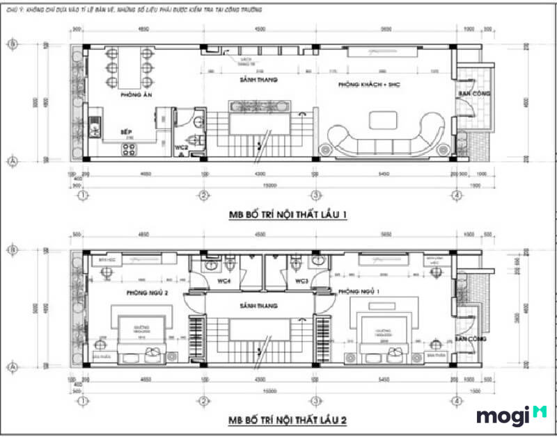
Bản vẽ mẫu nhà 2 tầng 5×15
Với mẫu thiết kế này, mặt bằng tầng trệt sẽ bao gồm phòng khách, phòng bếp, phòng ăn và phòng ngủ. Phòng khách được bố trí liền kề với cửa chính, tạo sự thông thoáng, dễ chịu, thoải mái đón tiếp bạn bè, người thân.

Phần cầu thang của mẫu nhà phố 2 tầng 5×15 được thiết kế giữa nhà, là ranh giới giữa phòng khách và phòng bếp, giúp mang lại sự riêng tư mà không gây bí bách hay chật chội.
Bếp & phòng ăn thông nhau, giúp tối ưu diện tích, công năng sử dụng. Dưới tầng trệt có 1 phòng ngủ nhỏ được bố trí đầy đủ tiện nghi, cửa sổ lớn đang trang bị giúp mang lại không gian thông thoáng và dễ chịu.căn
Mặt bằng công năng lầu 1 mẫu nhà phố 2 tầng 5×15 bao gồm 3 phòng ngủ rộng rãi, đủ tiện nghi cùng với 1 WC chung bên ngoài giúp tối ưu diện tích sử dụng.
Ảnh mẫu nhà 2 tầng 5×15

>>>Tham khảo: Bậc tam cấp đẹp hợp phong thủy HOT nhất hiện nay và cách tính chuẩn
Bản vẽ mẫu nhà ống 2 tầng 5×15
Mặt bằng công năng tầng trệt mẫu nhà phố 5×15 bao gồm: Phòng khách, bếp, phòng ăn, WC và khu vực sân phơi.

Phòng khách được bố trí nằm gần sảnh với cửa chính rộng rãi và tiện nghi, cầu thang thiết kế liền phòng khách, ngăn cách với bếp và phòng ăn.
Khu vực bếp phòng ăn của mẫu nhà phố 2 tầng 5×15 này được thiết kế liền nhau giúp tối ưu diện tích sử dụng, mang lại cảm giác đầm ấm, sum vầy.
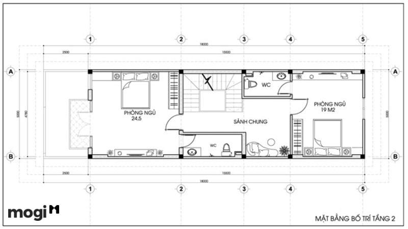
Mặt bằng công năng tầng 1 của mẫu nhà phố 2 tầng 5×15 với phòng thờ được bố trí ngoài mặt tiền nhằm đảm bảo yếu tố phong thuỷ
2 phòng ngủ lớn, 1 WC chung, ban công rộng rãi giúp đón ánh nắng và không khí trong lành.
Ảnh mẫu nhà ống 2 tầng 5×15

Bản vẽ mẫu nhà 2 tầng đẹp 5×15
Với bản vẽ này, khu vực tầng 1 được thiết kế công năng bao gồm các phòng: Phòng khách, bếp, phòng ăn, phòng ngủ và WC.

Phòng khách có diện tích trung bình, được bố trí gần khu vực cầu thang, liền kề với cửa chính của ngôi nhà. Phòng ngủ được bố trí cạnh cầu thang, đảm bảo thuận lợi cho việc sử dụng.
Khu vực bếp và phòng ăn được sắp xếp cuối nhà, giúp tránh được ám mùi nấu nướng lên khu vực phòng khách và phòng ngủ. Hệ thống cửa ở phía sau còn hỗ trợ cho không gian luôn thông thoáng và dễ chịu.
Tầng 2 của mẫu nhà phố 2 tầng 5×15 bao gồm: Sân thượng, phòng thờ, phòng ngủ
Sân thượng nằm ở phía trước, rộng rãi, có thể trồng các loại cây, hoa, rau quả. Phòng thờ được bố trí liền kề với phần sân thượng
2 phòng ngủ rộng rãi, tiện nghi cùng 1 WC chung đảm bảo phục vụ đầy đủ nhu cầu các thành viên trong gia đình.
Ảnh mẫu nhà 2 tầng đẹp 5×15

Bản vẽ thiết kế nhà 1 trệt 1 lầu 5×15
Mặt bằng công năng khu vực tầng trệt của mẫu nhà phố 2 tầng 5×15 bao gồm: phòng khách, bếp, phòng ăn, phòng ngủ, WC.

Về cơ bản, mẫu kiến trúc này tương tự như các bản vẽ trên nhưng cầu thang được bố trí dọc theo phòng khách và lối đi bên ngoài, giúp phòng khách có cảm giác rộng rãi và thuận tiện đi lại hơn.
Mẫu nhà phố 2 tầng 5×15 này phù hợp với gia đình muốn kinh doanh hoặc cho thuê mặt bằng tầng trật, đảm bảo không ảnh hưởng đến sinh hoạt gia đình.
Khu vực bếp, phòng ăn, phòng ngủ được bố trí một cách khoa học và hợp lý.
Mặt bằng công năng lầu 1 của mẫu nhà phố 2 tầng 5×15 này bao gồm 2 phòng ngủ, WC và phòng thờ. Ngoài ra, mẫu nhà này còn được thiết kế giếng trời, giúp lấy sáng và khiến nguồn không khí luôn thông thoáng, dễ chịu, gần gũi với thiên nhiên.
Ảnh mẫu nhà 1 trệt 1 lầu 5×15

>>>Xem thêm: Nhà một trệt một lầu đơn giản – mốt kiến trúc không lỗi thời
Bản vẽ thiết kế nhà 5×15 có gác xép
Các mẫu nhà phố 2 tầng 5×15 thường có kiểu kiến trúc khá đơn giản nhưng chứa khá nhiều giá trị sử dụng. Gia chủ có thể thoải mái tận dụng triệt để mọi ngóc ngách để có thể bố trí nội thất nhằm mang lại không gian sống tiện nghi và ấn tượng nhất.

Mẫu nhà này mang đến không gian sống tiện nghi và cuốn hút cho gia đình bạn. Phần gác xép được bố trí từ 1 đến 2 phòng ngủ nhằm gia tăng diện tích tầng trệt. Đồng thời, thiết kế 3 phòng ngủ còn giúp căn nhà tăng thêm diện tích trang trí và tô điểm bằng những vật dụng ấn tượng.
Đặc biệt chi phí xây dựng mẫu giả nhà 2 tầng 5×15 với gác xép rẻ hơn nhiều so với việc gia chủ bỏ tiền xây thêm tầng nữa cho ngôi nhà.
Ảnh mẫu nhà phố 2 tầng 5×15 có gác xép

Bản vẽ nhà 2 tầng 5×15 có gara để xe
Đối với các mẫu nhà phố 2 tầng 5×15 nói riêng, các mẫu nhà khác nói chung, phong thủy của gara thường bị bỏ quên.

Tầng đầu tiên được bố trí gara ô tô rộng rãi giúp gia chủ thoải mái để phương tiện của mình. Khu vực phòng khách ngay khi bước vào. Đây là không gian để gia chủ tổ chức các hoạt động sinh hoạt chung hoặc đón khách. Sau đó là khu vực ăn uống, nhà bếp liền kề và sân sau để đặt kho chứa hoặc máy giả, thuận tiện cho việc giặt ủi, phơi đồ.
Ở tầng thứ 2 bố trí khu vực nghỉ ngơi, giải trí cho cả nhà. Hai phòng ngủ bố trí ở 2 mặt, ngăn cách bằng giếng trời nằm giữa. Chính vì thế mà bên nào cũng đều có ánh sáng tự nhiên chiếu vào.
Ảnh mẫu nhà phố 2 tầng 5×15 có gara để xe

Bản vẽ thiết kế nhà 5×15 nhiều ánh sáng
Với mẫu nhà phố 2 tầng 5×15 này, mặt bằng công năng tầng 1 gồm phòng khách, phòng bếp, phòng ngủ và WC. Từ sân đi vào là không gian phòng khách thông thoáng. Phòng khách và phòng bếp được thiết kế liên thông với nhau. Xu hướng thiết kế không gian mở này sẽ giúp mẫu nhà 2 tầng 5×15 thêm thông thoáng và hạn chế sự bí bách, chật hẹp.

Mẫu nhà phố 5×15 nhiều ánh sáng sở hữu khu vệ sinh nằm ở cuối góc nhà, tạo điều kiện thuận lợi cho sự đi lại của các thành viên trong gia đình. Phía trong cùng là 1 phòng ngủ nhỏ, tạo sự yên tĩnh và riêng tư cho không gian.

Mặt bằng tầng 2 của mẫu nhà phố 5×15 gồm 2 phòng ngủ khép kín và phòng thờ.
Ảnh mẫu nhà phố 2 tầng 5×15 nhiều ánh sáng

Thiết kế nhà 2 tầng 2 phòng ngủ 5×15 phong cách hiện đại
Thiết kế mẫu 5x15m bản vẽ nhà 2 tầng 5×15 3 phòng ngủ theo phong cách hiện đại được rất nhiều gia chủ ưa chuộng, nhất là các gia đình trẻ. Công năng sử dụng bao gồm 2 phòng ngủ, 1 phòng khách, 1 phòng bếp và phòng ăn. Trong nhà lại được trang bị 3 WC cho từng không gian vô cùng tiện nghi và thoải mái.


Thiết kế nhà 2 tầng 3 phòng ngủ 5×15 gần gũi thiên nhiên
Mặt bằng tầng trệt của mẫu nhà phố 2 tầng 5×15 này bao gồm phòng khách, phòng bếp, phòng ăn, 1 phòng ngủ và 1 WC.

Khu vực cầu thang được bố trí dọc theo diện tích của phòng khách, tạo cảm giác rộng rãi và đi lại thuận tiện. Thiết kế này thường phù hợp với gia đình kinh doanh hoặc cho thuê mặt bằng khu vực tầng trệt, phòng bếp và phòng ngủ được bố trí vô cùng hợp lý.
Mặt bằng tầng 1 mẫu nhà phố 2 tầng 5×15 bao gồm 1 phòng thờ, 2 phòng ngủ và 1 WC, bên cạnh đó là thiết kế giếng trời lấy sáng cung ban công nhỏ phía trước nhà. Tại khu vực ban công có thể trồng cây xanh, hoa, cây ăn quả, rau xanh giúp ngôi nhà thêm căng tràn sức sống và gần gũi với thiên nhiên.

>>>Tham khảo: Tổng hợp các mẫu tiểu cảnh gầm cầu thang đẹp hiện đại
Thiết kế mẫu nhà 2 tầng 3 phòng ngủ 5×15 có sân rộng rãi
Diện tích 5x15m được xem là kích thước khá lý tưởng để có thể sở hữu khoảng sân trước rộng rãi trồng cây xanh, nơi vui chơi cho trẻ hoặc nơi thư giãn cho gia đình.

Chiều dài ngôi nhà có thể dành sân trước gần 3m để làm sân, bố trí cầu thang ngoài trời như lối đi riêng. Tầng 1 bao gồm phòng khách, bếp ăn, phòng ngủ. Phòng khách thiết kế rộng rãi, không gian bếp ăn tận dụng sảnh thang rộng, tận hưởng khoảng giếng trời ở thang làm tiểu cảnh đẹp mắt.

Tầng 2 có 2 phòng ngủ rộng, có vệ sinh riêng khép kín, thiết kế đảm bảo diện tích phù hợp và vệ sinh riêng cho từng phòng. Đồng thời, khu vực sảnh chung có thể kê bộ bàn ghế nhỏ, hoặc dùng làm nơi để thư viện sách, không gian nhỏ phù hợp với gia đình.
Thiết kế mẫu nhà ống 2 tầng đơn giản đẹp 3 phòng ngủ 5×15
Khu vực tầng trệt bao gồm 1 phòng khách, phòng bếp, phòng ăn, phòng ngủ, WC. Ngoài ra, mẫu nhà phố 2 tầng 5×15 này còn có thiết kế khoảng sân sau có thể dùng để phơi đồ hoặc trồng cây xanh trang trí.

Tầng 1 bao gồm 2 phòng ngủ, 2 WC, mang lại sự tiện nghi, thoải mái trong quá trình sử dụng. Bên cạnh phòng thờ được bài trí thêm 1 phòng ngủ nhỏ dành cho khách ghé thăm và khu vực ban công rộng rãi có thể làm không gian xanh cho tổ ấm của bạn.

Một số mẫu thiết kế các không gian nhà 2 tầng
Ở phần này, Mogi sẽ mang đến cho bạn đọc các thiết kế không gian của mẫu nhà 2 tầng đẹp, độc đáo nhất.
Phòng khách
Mẫu thiết kế nội thất này dựa theo xu hướng hiện đại, trẻ trung nhưng không kém phần sang trọng, được rất nhiều người ưa chuộng. Kiểu nội thất này không quá cầu kỳ nhưng vẫn đảm bảo sự tiện nghi, sang trọng và không kém phần tinh tế.

Bếp và phòng ăn
Kiểu thiết kế này sử dụng tone màu trắng hòa hợp với tổng thể chung ngôi nhà. Phòng ăn được bố trí liền với bếp giúp tối ưu không gian sử dụng, tạo cảm giác sum vầy, đầm ấm. Phía sau căn bếp và phòng ăn chính là cửa và hành lang trồng cây xanh, điều này giúp hút mùi hiệu quả, giữ không gian luôn thông thoáng và mát mẻ.

>>>Tham khảo: Cách thiết kế nhà bếp nhỏ đơn giản vừa đẹp vừa sang trọng
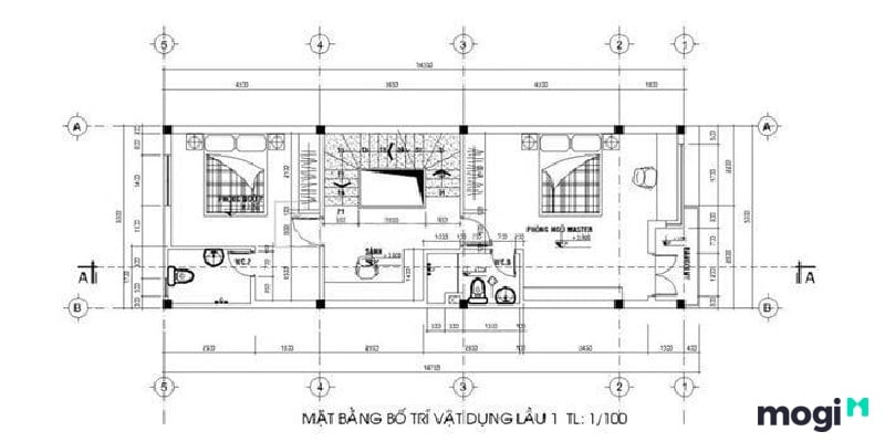
Phòng ngủ
Phòng ngủ master sở hữu diện tích rộng, được thiết kế đầy đủ tiện nghi với giường, bàn trang điểm, hệ tủ kịch trần, kết hợp giá để túi xách, phụ kiện, giày dép. Phòng ngủ được bố trí gồm 2 cửa sổ đón nắng giúp căn phòng luôn thông thoáng và dễ chịu.

Chi phí xây nhà 2 tầng 5x15m rơi vào khoảng bao nhiêu?
Nhìn chung, chi phí xây dựng mẫu nhà phố 2 tầng 5×15 hiện nay dao động từ 1.08 đến 1.68 tỷ đồng. Tùy vào yêu cầu thiết kế, chất lượng vật liệu xây dựng, vật liệu hoàn thiện và đội ngũ thi công mà mức giá này có thể thay đổi.

Dự trù diện tích xây dựng gồm:
- Diện tích móng= 5×15 x 50% = 37,5m2
- Diện tích tầng trệt= 5×15 x 100% = 75m2
- Diện tích lầu 1= 5×15 x 100% = 75m2
- Diện tích lầu 2= 5×15 x 100 % = 75m2
- Diện tích mái ngói chất liệu bê tông cốt thép= 5×15 x 100% = 75m2
- Tổng diện tích sàn thi công= 337,5m2
- Chi phí xây dựng thô= 337,5m2 x 3.200.000 = 1 tỷ 80 triệu
- Chi phí xây dựng trọn gói= 337,5m2 x 5.000.000 = 1 tỷ 688 triệu. (Bao gồm phần thô và ốp lát hoàn thiện chưa có mua sắm lắp đặt nội thất).
Trên đây là những mẫu nhà phố 2 tầng 5×15 đẹp, tiện nghi, tiết kiệm chi phí nhất mà Mogi.vn muốn giới thiệu tới bạn đọc. Hy vọng bạn đã lựa chọn được những mẫu thiết kế ưng ý nhất, đừng quên bấm theo dõi Mogi.vn để không bỏ lỡ bất kỳ tin tức thú vị nào nhé. Cập nhật tin tức mới nhất về đời sống, xã hội, mua bán đất, nhà, căn hộ tại Mogi.vn.
>>>Có thể bạn quan tâm:


















