
Việc thiết kế căn hộ 2 phòng ngủ 50m2, bản vẽ căn hộ 2 phòng ngủ đang trở thành một thách thức đầy sáng tạo và đòi hỏi sự tinh tế trong việc tối ưu hóa không gian. Trong bài viết này, chúng ta sẽ khám phá những giải pháp thiết kế độc đáo và những gợi ý sáng tạo để biến căn hộ nhỏ bé thành một không gian sống đáng mơ ước cùng Mogi.
Các mẫu thiết kế căn hộ 2 phòng ngủ 50m2 đẹp
Các mẫu thiết kế căn hộ chung cư 2 phòng ngủ 50m2 với bảng vẽ chi tiết là minh chứng cho sự sáng tạo và chuyên nghiệp trong việc xây dựng không gian sống lý tưởng. Những bản vẽ này cung cấp một cái nhìn tổng quan về cách sắp xếp không gian, bố trí nội thất và các chi tiết trang trí. Bằng cách này, các chủ đầu tư và gia đình có thể dễ dàng hình dung và thẩm định trước về không gian sống sẽ như thế nào.
Các bản vẽ chung cư đẹp diện tích nhỏ chi tiết thường bao gồm kích thước chính xác của mỗi phòng, bố trí của cửa sổ, cửa ra vào, vị trí của các thiết bị gia đình và nội thất, cũng như các chi tiết trang trí như đèn, tranh ảnh và kệ sách. Mỗi yếu tố được thiết kế và bố trí sao cho tối ưu hóa không gian và tạo ra một môi trường sống thoải mái và hài hòa.
Bằng cách sử dụng các bản vẽ chi tiết, các nhà thiết kế và chủ đầu tư có thể đảm bảo rằng mọi khía cạnh của căn hộ được xem xét và tối ưu hóa trước khi bắt tay vào việc thi công. Điều này giúp đảm bảo rằng kết quả cuối cùng sẽ đáp ứng được mong đợi và mang lại sự hài lòng cho mọi người sử dụng.
Xem thêm: 99+ Mẫu Thiết Kế Nội Thất Chung Cư Hiện Đại – Xu Hướng Căn Hộ 2024
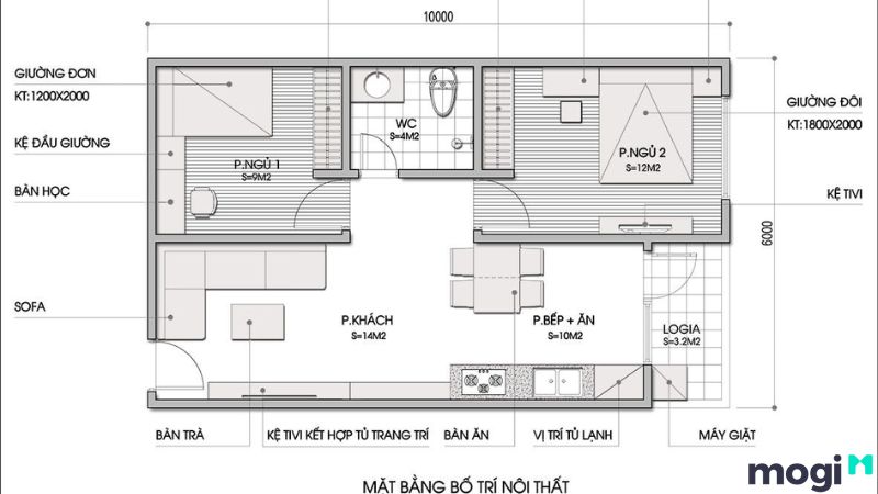
Mẫu thiết kế căn hộ 2 phòng ngủ 50m2 hiện đại
Mẫu thiết kế căn hộ 2 phòng ngủ 50m2 hiện đại tạo ra không gian thoải mái và tiện nghi cho cả gia đình, phù hợp với lối sống hiện nay.



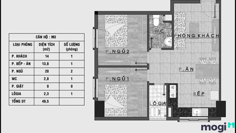
Mẫu thiết kế căn hộ 2 phòng ngủ 50m2 có ban công
Decor chung cư 2 phòng ngủ với ban công là một lựa chọn lý tưởng cho những người yêu thích không gian ngoài trời. Ban công mở ra một không gian thư giãn, nơi cư dân có thể tận hưởng không khí trong lành và cảnh quan xung quanh.



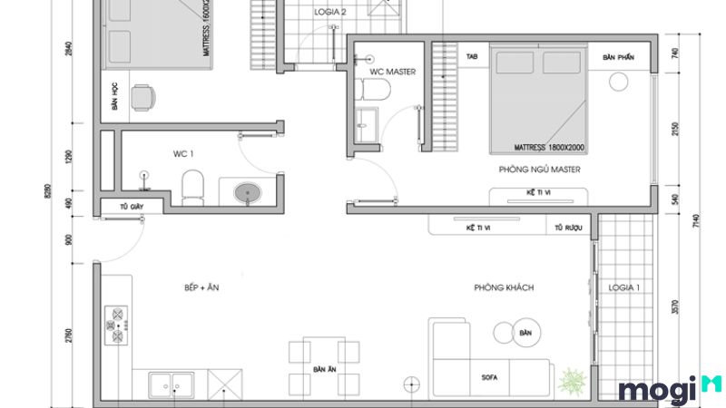
Mẫu thiết kế nội thất chung cư 50m2 2 phòng ngủ nằm góc tòa nhà
Mẫu thiết kế nội thất cho căn hộ chung cư 50m2 2 phòng ngủ nằm góc tòa nhà, sẽ nhận được ánh sáng tự nhiên từ nhiều hướng, tạo cảm giác mở rộng và thông thoáng. Thiết kế được tối ưu hóa để sử dụng mọi góc độ của không gian, từ việc sắp xếp nội thất đến bố trí phòng ngủ và vị trí của các tiện ích.



Xem thêm: Mẫu phòng khách đẹp mới nhất 2022 và cách thiết kế đơn giản nhất!
Mẫu thiết kế nội thất căn hộ 2 phòng ngủ 50m2 có bếp mở
Mẫu thiết kế nội thất căn hộ 2 phòng ngủ diện tích 50m2 với bếp mở không chỉ tạo điểm nhấn cho căn hộ mà còn tạo điều kiện thuận lợi cho việc giao tiếp và tương tác giữa các thành viên trong gia đình khi nấu ăn.



Mẫu thiết kế căn hộ 2 phòng ngủ 50m2 cổ điển
Mẫu thiết kế căn hộ 2 phòng ngủ 50m2 mang phong cách cổ điển đem lại một không gian sống đầy lịch lãm và sang trọng. Với sự kết hợp của các chi tiết trang trí cổ điển như đồ gỗ chất lượng cao, cánh cửa cổ điển, và đèn trang trí tinh tế, căn hộ trở nên ấm áp và đẳng cấp.



Mẫu thiết kế chung cư mini 50m2 2 phòng ngủ minimalism
Mẫu thiết kế chung cư mini 50m2 với 2 phòng ngủ theo phong cách minimalism tối giản hóa các yếu tố trang trí và sử dụng màu sắc trung tính, căn hộ tạo ra một không gian mở rộng và thư giãn.



Mẫu thiết kế căn hộ 2 phòng ngủ 50m2 kiểu Hàn Quốc
Mẫu thiết kế căn hộ 2 phòng ngủ 50m2 theo phong cách Hàn Quốc sử dụng đồ gỗ tự nhiên, các chi tiết trang trí nhỏ nhắn và sắp xếp không gian thông minh, căn hộ tạo ra một không gian sống ấm áp và thoải mái.



Xem thêm: Thiết Kế Nội Thất Chung Cư Tân Cổ Điển Đẹp, Bắt Xu Hướng Nhất Năm
Mẫu thiết kế căn hộ chung cư 2 phòng ngủ 50m2 Indochine
Mẫu thiết kế căn hộ chung cư 2 phòng ngủ 50m2 theo phong cách Indochine sử dụng các yếu tố trang trí đặc trưng như gạch lát sân vườn, đồ gỗ tự nhiên và những chi tiết thủ công truyền thống, căn hộ mang lại cảm giác ấm áp và lãng mạn.



Mẫu thiết kế căn hộ 2 phòng ngủ 50m2 Color Block
Mẫu thiết kế căn hộ 2 phòng ngủ 50m2 với phong cách Color Block là sự kết hợp táo bạo và sáng tạo giữa các màu sắc đối lập. Tận dụng sức mạnh của màu sắc, căn hộ tạo nên các khối màu đậm nổi bật, tạo điểm nhấn và sự phong phú cho không gian sống.



Mẫu thiết kế nội thất chung cư nhỏ 50m2 Nhật Bản
Mẫu thiết kế nội thất cho chung cư nhỏ diện tích 50m2, thiết kế phòng khách 50m2
theo phong cách Nhật Bản là sự kết hợp tinh tế giữa sự tiện nghi và tối giản.



Xem thêm: Hướng dẫn trang trí phòng khách nhỏ đẹp, hiện đại
Lưu ý gì khi thiết kế căn hộ chung cư 2 phòng ngủ 50m2?
Tối ưu công năng từng khu vực
Khi thiết kế căn hộ chung cư 2 phòng ngủ diện tích 50m2, việc tối ưu hóa công năng từng khu vực là rất quan trọng. Đầu tiên, cần chú ý đến không gian sống chung, nơi mà gia đình có thể gặp gỡ và tương tác. Sử dụng bố trí mở và sử dụng đồ nội thất đa năng để tối ưu hóa không gian.
Tiếp theo, phải xem xét cách sắp xếp và tận dụng mỗi mét vuông trong phòng ngủ, bếp và phòng tắm. Sử dụng các giải pháp lưu trữ thông minh để giữ cho không gian luôn gọn gàng và tiện nghi. Cuối cùng, không quên ánh sáng và màu sắc, với màu sắc sáng và ánh sáng tự nhiên để làm cho căn hộ trở nên rộng rãi hơn và tạo cảm giác thoải mái.
Xem thêm: Kinh nghiệm thiết kế nội thất chung cư nhỏ nên chú ý để có căn hộ đẹp
Lưu ý hướng ánh sáng của căn hộ
Khi thiết kế căn hộ chung cư 2 phòng ngủ diện tích 50m2, một trong những yếu tố quan trọng cần lưu ý là hướng ánh sáng của căn hộ. Đầu tiên, cần xem xét cách ánh sáng tự nhiên có thể đi vào từ các cửa sổ và cửa ra vào.

Hãy tận dụng ánh sáng tự nhiên bằng cách chọn vị trí và kích thước của cửa sổ một cách thông minh để tối đa hóa lượng ánh sáng trong căn hộ. Thêm vào đó, cần xem xét cách sắp xếp nội thất và các vật liệu để phản chiếu ánh sáng một cách hiệu quả và làm cho căn hộ trở nên sáng sủa và thoáng đãng.
Xem thêm: Thiết Kế Nội Thất Chung Cư 100m2 Đẹp Hiện Đại Và Sang Trọng Nhất
Lựa chọn màu sắc cho căn hộ
Trong quá trình thiết kế căn hộ chung cư 2 phòng ngủ diện tích 50m2, việc lựa chọn màu sắc đóng vai trò quan trọng để tạo ra một không gian sống hài hòa và thoải mái. Đầu tiên, cần chọn màu sắc trung tính như trắng, xám, hoặc be để làm nền, giúp tạo cảm giác rộng rãi và sáng sủa.
Sau đó, có thể sử dụng màu sắc tươi sáng như xanh lá, vàng hoặc hồng nhạt để tạo điểm nhấn và tăng tính sinh động cho không gian. Tuy nhiên, cần tránh sử dụng quá nhiều màu sắc và tập trung vào việc tạo ra sự cân bằng và sự hài hòa cho căn hộ.
Xem thêm: Các Xu Hướng Nội Thất Năm 2024 Được Dự Đoán Làm Mưa Làm Gió
Ưu tiên trang bị nội thất thông minh
Khi thiết kế căn hộ chung cư 2 phòng ngủ diện tích 50m2, việc ưu tiên trang bị nội thất thông minh là một yếu tố quan trọng để tối ưu hóa không gian và tiện ích. Trước hết, cần chọn những món đồ nội thất đa năng, như giường sofa có thể gập lại, bàn ăn có thể mở rộng hoặc tủ đựng đồ có nhiều ngăn để tận dụng mọi mét vuông.

Tiếp theo, cần xem xét việc sử dụng các giải pháp lưu trữ thông minh như tủ kệ treo, hộp đựng dưới giường, hoặc bậc thang có chứa tủ để tạo ra không gian gọn gàng và sạch sẽ. Bằng cách này, căn hộ sẽ trở nên tiện nghi và thoải mái hơn.
Xem thêm: 99+ Mẫu Thiết Kế Nội Thất Chung Cư Hiện Đại – Xu Hướng Căn Hộ 2024
Lựa chọn nội thất phù hợp
Trong quá trình thiết kế căn hộ chung cư 2 phòng ngủ diện tích 50m2, việc lựa chọn nội thất phù hợp đóng vai trò quan trọng để tạo ra một không gian sống tiện nghi và hài hòa. Đầu tiên, cần xác định rõ nhu cầu và phong cách sống của gia đình để chọn lựa nội thất phù hợp.
Nên ưu tiên những món đồ nội thất nhỏ gọn và đa năng để tiết kiệm không gian, như bàn ăn có thể gấp gọn, giường sofa, hay tủ kệ đa năng. Hơn nữa, cần chú trọng vào chất lượng và tính thẩm mỹ của nội thất để tạo ra không gian sống đẹp mắt và thoải mái. Đồng thời, lưu ý về màu sắc và phối hợp để tạo ra sự hài hòa và cảm giác thoải mái cho người sử dụng căn hộ.
Xem thêm: Nằm Lòng 7 Nguyên Lý Thiết Kế Nội Thất Quan Trọng, Không Thể Bỏ Qua
Yếu tố phong thủy đối với gia chủ
Khi thiết kế căn hộ chung cư 2 phòng ngủ diện tích 50m2, yếu tố phong thủy đóng vai trò quan trọng, tạo nên không gian sống hài hòa và mang lại may mắn, sức khỏe cho gia chủ. Đầu tiên, cần chú ý đến hướng cửa chính và cửa sổ của căn hộ để tối ưu hóa lưu thông năng lượng tích cực.
Cửa chính nên hướng về phía ngoài để thu hút năng lượng tốt, còn cửa sổ nên được đặt ở vị trí thoáng đãng để tạo sự thông thoáng và tối ưu hóa lưu thông của không khí. Tiếp theo, vị trí của phòng ngủ và bếp cũng đóng vai trò quan trọng trong phong thủy.

Phòng ngủ nên đặt ở vị trí yên tĩnh, không gian riêng tư và tránh tiếp xúc trực tiếp với cửa chính. Bếp nên được đặt ở vị trí sạch sẽ, thoáng đãng và tránh xa phòng ngủ để không gây xung đột năng lượng.
Ngoài ra, việc sử dụng màu sắc và vật liệu phù hợp cũng ảnh hưởng đến phong thủy của căn hộ. Màu sắc như xanh lá cây, xanh dương hay trắng được coi là mang lại sự yên bình và thanh lọc không khí, trong khi đó, vật liệu tự nhiên như gỗ cũng tạo cảm giác ấm áp và gần gũi với thiên nhiên. Tất cả những yếu tố trên sẽ hỗ trợ gia chủ tạo ra một môi trường sống tốt và thuận lợi cho sức khỏe và may mắn.
Trong bài viết này, chúng ta đã thảo luận về gợi ý thiết kế căn hộ 2 phòng ngủ 50m2, căn hộ 50m2 và những yếu tố quan trọng cần lưu ý để tạo ra không gian sống lý tưởng và tiện nghi. Việc tối ưu hóa không gian, lựa chọn nội thất phù hợp, áp dụng phong thủy và sử dụng các giải pháp thiết kế thông minh là những điểm cần được quan tâm. Nếu bạn đang tìm kiếm thông tin và tư vấn chi tiết hơn về thiết kế căn hộ 2 phòng ngủ 50m2, bạn có thể truy cập website Mogi.vn.
Tìm hiểu ngay:




















